Секретная резиденция Путина: расследователи показали, как она выглядит

Читати українською
Секретная резиденция Путина: расследователи показали, как она выглядит
Секретная резиденция Путина: расследователи показали, как она выглядит

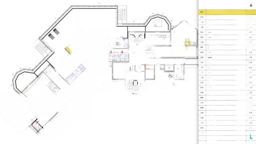
В зимней резиденции, утверждают расследователи, есть панорамный лифт, соляная комната, несколько баров, криокомната, помещение для просмотра видеофильмов.

У президента России Владимира Путина есть элитная секретная резиденция недалеко от Сочи. Об этом сообщает "Навальный LIVE".

Расследователям удалось обнаружить целый жилой комплекс, в который российский лидер приезжает зимой покататься на лыжах.

В доме всего 4 этажа: два над землей и еще два подземных. Общая площадь президентской резиденции составляет 3800 квадратных метров.

В зимней резиденции Путина есть панорамный лифт, соляная комната, несколько баров, криокомната, помещение для просмотра видеофильмов.

На территории резиденции расположены финская сауна, бассейны с холодной и горячей водой, аквазона, а также отдельный массажный кабинет.

дача путина, дача путина сочи dqxikeidqxitkantдача путина, красная полянадача путина, дача путина план

По словам журналистов, одни только светильники в резиденции стоят более полумиллиона рублей.

Расследователям также удалось выяснить, что возле зимней резиденции Путина, на Красной поляне установили "Панцирь-С1" (средство ПВО, — ред.). Его поставили возле того места, где российский президент любит кататься на лыжах.

В километре от противоракетной установки находится комплекс зданий на 20 га земли с вертолетной площадкой и собственным подъемником.

К слову, весь комплекс зданий по документам принадлежит российскому "Газпрому".

Расследователям также удалось узнать, что резиденции президента РФ охраняют системы ПВО "Панцирь С-1". В частности комплексы "Панцирь-С1" охраняют не только работу президента страны-агрессора в Кремле, но и его досуг. В частности, ЗРК закрывают небо в районе секретной резиденции Путина в Красной Поляне.

Дата и время 04 апреля 2023 г., 07:03     Просмотров Просмотров: 3060