Секретна резиденція Путіна: розслідувачі показали, як вона виглядає

Секретна резиденція Путіна: розслідувачі показали, як вона виглядає
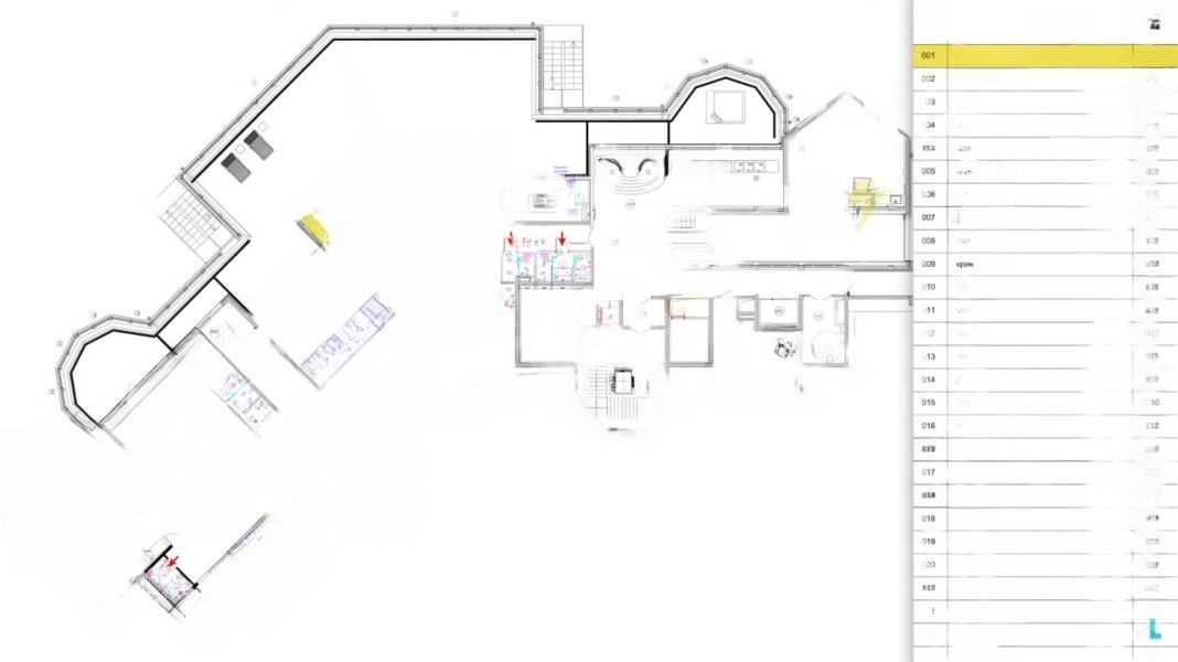
У зимовій резиденції, стверджують розслідувачі, є панорамний ліфт, соляна кімната, кілька барів, кріокомнати, приміщення для перегляду відеофільмів.
Президент Росії Володимир Путін має елітну секретну резиденцію недалеко від Сочі. Про це повідомляє "Навальний LIVE".
Розслідувачам вдалося виявити цілий житловий комплекс, до якого російський лідер приїжджає взимку покататися на лижах.
У будинку всього 4 поверхи: два над землею та ще два підземні. Загальна площа президентської резиденції становить 3800 кв.
У зимовій резиденції Путіна є панорамний ліфт, соляна кімната, кілька барів, кріокомнати, приміщення для перегляду відеофільмів.
На території резиденції розташовані фінська сауна, басейни з холодною та гарячою водою, аквазона, а також окремий масажний кабінет.



За словами журналістів, одні тільки світильники у резиденції коштують понад півмільйона рублів.
Розслідувачам також вдалося з’ясувати, що біля зимової резиденції Путіна на Червоній галявині встановили "Панцир-С1" (засіб ППО — ред.). Його поставили біля того місця, де російський президент любить кататись на лижах.
За кілометр від протиракетної установки знаходиться комплекс будівель на 20 га землі з вертолітним майданчиком та власним витягом.
До речі, весь комплекс будівель за документами належить російському "Газпрому".
Розслідувачам також вдалося дізнатися, що резиденції президента РФ охороняють системи ППО "Панцир С-1". Зокрема комплекси "Панцир-С1" охороняють не лише роботу президента країни-агресора у Кремлі, а й його дозвілля. Зокрема, ЗРК закривають небо у районі секретної резиденції Путіна у Червоній Поляні.
Теги: ДиктаторыРоссияРезиденцияПутин
Коментарі:
comments powered by DisqusЗагрузка...
Наші опитування
Показати результати опитування
Показати всі опитування на сайті
