“Строительная группа “Синергия” оказалась “фиктарем”?

“Строительная группа “Синергия” оказалась “фиктарем”?
В одном из “крупнейших застройщиков Ирпеня” работает 2 человека
Рынок новостроек Ирпеня продолжает лихорадить. Только недавно стало известно об аресте земельных участков под новым ЖК “Синергия Сити” и инвесторы ринулись забирать оттуда деньги. И вот очередной скандал. Как выяснилось, ООО “Строительная группа “Синергия” не является не только крупной компанией, но и вообще - по документам - не может проводить строительные работы, поскольку имеет все признаки фиктивного предприятия. Очевидно, что инвесторам всех домов группы есть смысл задуматься о безопасности своих вложений.
“Строительная группа “Синергия” в последнее время постоянно попадает в скандалы. Ее владелец и директор Игорь Оверко - депутат городского совета Ирпеня и лицо, очень сильно приближенное к экс-мэру Владимиру Карплюку. Его наблюдатели и считают реальным конечным бенефициаром “Синергии”.
Компания уже достаточно давно застраивает земельные участки в Ирпене. Последний скандал вокруг нее связан с незаконной застройкой поймы реки Ирпень, ради которой горсовет в декабре 2018 года даже менял Генеральный план города. Дело в том, что формально пойма является сельскохозяйственными землями, которые относятся к территории Киевской области. Кроме того, есть заключение научного института о том, что строительство там чревато экологической катастрофой. Прокуратура подала иск об отмене генплана, и, соответственно, поставила под большой вопрос законность возведения чего-либо на пойме, хотя там уже началось строительство ЖК “Синергия Сити”, с помпой представленного в конце августа в Fedoriv Hub.
Но это не конец истории. Когда СМИ распространили решение суда об аресте земельного участка в рамках поданного прокуратурой иска, Игорь Оверко начал заявлять об “информационной атаке” и всячески оправдываться, что компания ведет деятельность вполне законно.
Тем самым загнав себя на новый уровень скандала. Дело в том, что озвученная им информация о сумме уплаченных налогов (100 млн грн. за год) и о сроках работы компании на рынке оказалась “фейком”. Согласно официальным реестрам, “Строительная группа “Синергия” вообще имеет все признаки фиктивного предприятия. И даже обнародованные на сайте фирмы документы подтверждают, что строительство ведется через серые схемы.
Что собой являет “Строительная группа “Синергия”?
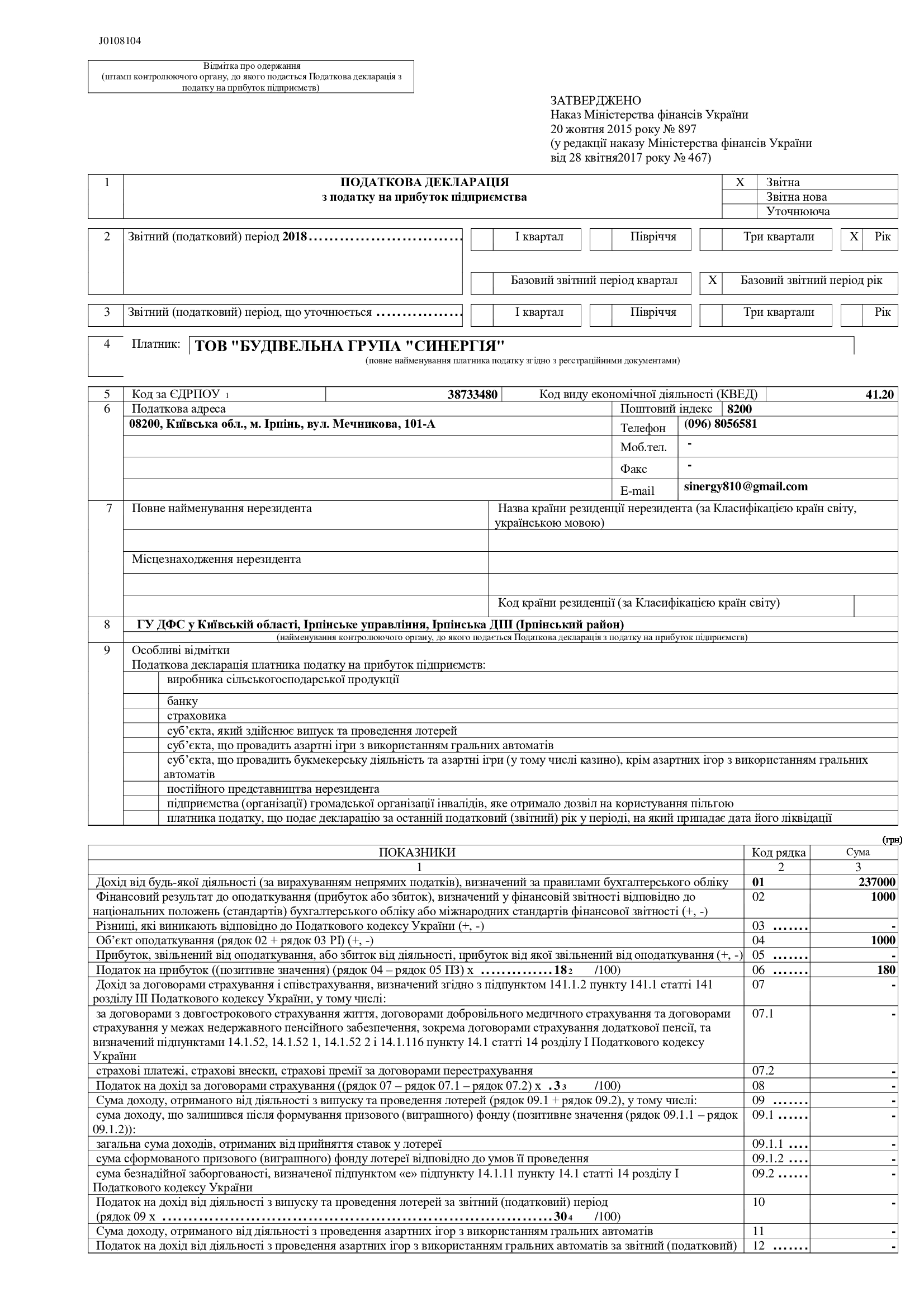
Когда Игорь Оверко пафосно презентует свои проекты и общается с инвесторами, кажется, что мы имеем дело с действительно большой девелоперской компанией. Но стоит нам зайти в Единый реестр предприятий, как обнаруживается, что “Синергия” - это мелкий бизнес типа “два стола-три стула”. Посудите сами. По коду ЕГРПОУ 38733480 каждый желающий может выяснить, что уставной капитал ООО составляет 10 тыс. грн. - очень нетипично для компании, которая платит 100 млн грн. налогов. Далее, согласно данным налоговых органов, общий доход (выручка) компании за 2018 год составила 237 тыс. грн. или чуть менее $10 тыс. - это едва ли полквартиры. Не является ли это демонстрацией занижения доходов и уклонения от уплаты реальных налогов?
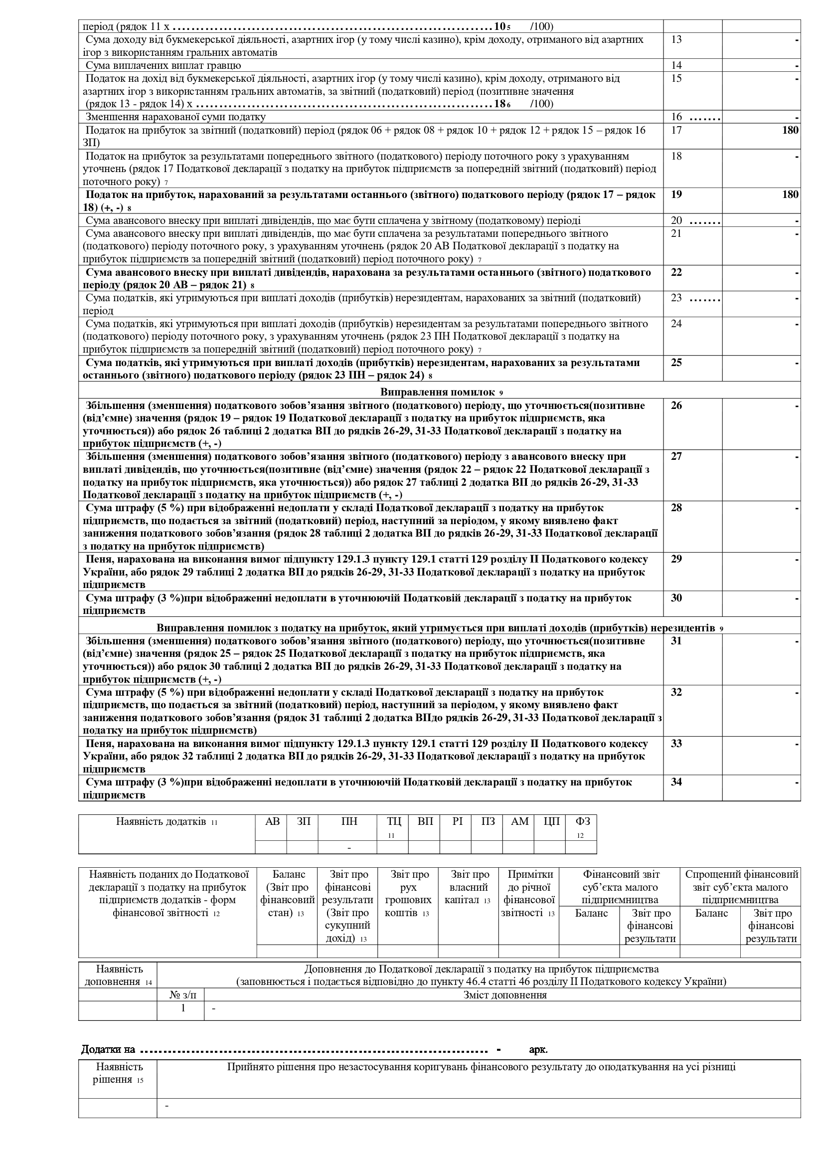
Кстати, о налогообложении. По тем же данным налоговых органов, в 2018 году ООО “Строительная компания “Синергия” заплатила налога на прибыль аж … 180 грн. Да, не 180 тысяч или 180 млн. - а именно 180 грн. Поскольку ООО не является плательщиком НДС (действительно, зачем это “крупнейшему застройщику Ирпеня”), то этот налог тоже не уплачивается. Баланс основных средств по состоянию на 31 декабря 2018 года составлял 0 грн. (ноль, зеро, ничего не было из основных активов - ни кранов, ни стройматериалов, вообще ни-че-го)
Ну и вишенка на торте - это количество работающих сотрудников в ООО. Это 2 (не 2 тысячи, не 200, а именно два) человека: сам Игорь Оверко и некто Петренко Ирина Юрьевна из Житомира. При этом и директором, и бухгалтером компании одновременно является сам Оверко.
Итак, налицо явные признаки фиктивного бизнеса: уставной капитал и нулевой баланс основных средств не позволяют вести заявленную деятельность (строительство жилья), директор и бухгалтер - один человек. Куда смотрят налоговые органы?
Кто реальный заказчик ЖК “Синергия Сити”?
Ранее СМИ сообщали, что компании, приближенные к Владимиру Карплюку, уклоняются от уплаты налогов на десятки миллионов гривень именно благодаря схеме продажи жилья через физлиц. Которые заключают договора не покупки-продажи, а “совместной деятельности” с инвестором. В результате - по документам - происходит не “продажа квартиры / прав на квартиру” (которая должна облагаться, например, налогом на прибыль для застройщика), а передача “совместно построенного” объекта.
Вот и в ЖК “Синергия Сити”, по всей видимости, схема должна была бы развиваться. Под своим видео с оправданиями относительно “информационной атаки” Игорь Оверко разместил линк на раздел сайта с разрешительными документами.
Как оказалось, формально ООО “Строительная компания “Синергия” вообще не имеет никакого отношения к своим объектам. Например, заказчиком ЖК “Синергия Сити” на 72 дома является некое физлицо Юрий Дмитриевич Мураш. Именно он получает все градостроительные разрешения, именно он привлекает подрядчиков на строительство. Именно с ним - а не с Игорем Оверко и его компаниями - инвесторы будут заключать договора. Ответ на вопрос, почему именно физлицо строит “город в городе” на 10 тысяч человек и каким является его уровень ответственности за реализацию такого объекта, конечно же, очевиден.
***
На сегодняшний день, несмотря на арест участков, “Синергия Сити” все еще продолжает возводиться. Однако, прежде, чем вкладывать деньги в этот сомнительный проект, стоит внимательно изучить все риски, которые он несет за собой.
Автор: Владимир Коцюбенко
Теги: Мураш ЮрийПетренко Иринафиктивные фирмыКоррупцияКарплюкОверко ИгорьСинергияСкандалЖК Синергия Сити
Комментарии:
comments powered by DisqusЗагрузка...
Наши опросы
Показать результаты опроса
Показать все опросы на сайте
