Застройка "Баляша-Хмельницкого" возле Юрковицы оказалась под угрозой: возбуждено уголовное дело

Застройка "Баляша-Хмельницкого" возле Юрковицы оказалась под угрозой: возбуждено уголовное дело
В столице продолжаются скандалы вокруг строительства ЖК Рихерт & Парк у склона горы Юрковица, которое планируют компании с орбиты бизнесменов Василия Хмельницкого и Олега Баляша (на коллаже в центре и справа соответственно).
Несмотря на то, что застройщики вроде бы смогли найти компромисс с местной общиной, в частности, пообещав ей обустроить большой парк рядом, согласны не все. Например, адвокат Александр Дядюк в рамках двух судебных дел требует отмены МУО на проектирование строительства и первого разрешения на проведение этих работ от ГАСИ. Среди прочего, он указывает на то, что в чиновники КГГА не указали в "городострой" четкие параметры высотности будущих домов, что заказчик работ - ООО "Керамблоки-Инвест" - не получил необходимых согласований от органов охраны культурного наследия, что строить жилье в этой локации можно только в рамках определенных "лимитов" и т.д. Сходные претензии к "перспективному" ЖК имеют и правоохранители - недавно они в рамках следствия добились наложения ареста на 10,7 га земли, которые собираются осваивать застройщики.
В ближайшее время в столичных судах должно начаться рассмотрение двух судебных дел, касающихся строительства жилого комплекса (ЖК) "Рихерт & Парк" на территории площадью 10,7 га в Подольском районе Киева (проект девелопера "A Development").
Речь идет об исках, которые в этом году были поданы в Шевченковский районный суд Киева столичным адвокатом и правозащитником Александром Дядюком и которые по состоянию на сегодняшний день еще не рассмотрены по существу.
Так, в рамках первого гражданского дела Дядюк требует признать незаконными и упразднить градостроительные условия и ограничения (МУО) на проектирование строительства жилого комплекса с объектами социального и общественного назначения и подземным паркингом в пределах улиц Фрунзе (новое название – Кирилловская), Нижнеюрковской и пер. Мыльного, выданные Департаментом градостроительства и архитектуры Киевской горгосадминистрации (КГГА, это структурное подразделение является ответчиком по данному делу) еще в июле 2014 года.
В рамках второго судебного спора Александр Дядюк оспаривает разрешение на выполнение строительных работ по указанному адресу, которое Государственная архитектурно-строительная инспекция (ГАБИ) выдала компании ООО "Керамблоки-Инвест" в августе 2021 года. ГАСИ была ликвидирована в сентябре 2021 года, поэтому ответчиком является новая структура, которая пришла ей на смену – Государственная инспекция архитектуры и градостроительства (ДИАМ).
Как сообщил Александр Дядюк, в настоящее время производство по этим искам еще не открыто. Это связано с тем, что в суде считают, что такие дела должны рассматриваться в порядке административного судопроизводства – то есть иски должны быть поданы в Киевский окружной админсуд (КОАС). По словам адвоката, сначала он планирует дождаться окончательного вердикта относительно того, в каком суде должно рассматриваться дело по "градостроям", чтобы в дальнейшем также направить в КОАС и иск об отмене разрешения на строительство, ведь в таком случае дела рассматриваются по схожей процедуре.
Относительно требований истца
Александр Дядюк рассказал, что его требования по отмене МУО связаны с тем, что в этом документе не была указана максимальная высота зданий, которые можно проектировать для строительства. По убеждению адвоката, застройщики действительно имеют право возводить на этой территории дома не выше 15-27 метров, ведь этот участок находится в пределах памятника ландшафта, истории местного значения "Исторический ландшафт Киевских гор и долины р. Днепр".
Дядюк подчеркивает, что та высотность, которую он отметил, была установлена для этого памятника столичными властями в 2019 году, но в дальнейшем, в 2022-м, КГГА на непонятных основаниях увеличила показатели – до 42 метров включительно. По словам адвоката, вполне возможно, ему придется обжаловать и такое решение столичных властей, ведь он также сомневается в его законности (о нем речь пойдет ниже. – СМИ).
Что касается вышеупомянутого разрешения на строительство, то, по убеждению Дядюка, ГАСИ не имела права его выдавать, в частности – из-за отсутствия некоторых согласований и документов. В частности, адвокат отметил, что проект строительства указанного ЖК не был согласован с Департаментом охраны культурного наследия КГГА, хотя такое требование было прописано в МУО. Также Александр Дядюк сомневается в существовании историко-градостроительного обоснования по будущей застройке, получение которого требовали те же МУО и которое якобы было выдано Министерством культуры и информационной политики в 2016 году. Дело в том, что Минкульт сообщил о выдаче этого документа, но не предоставил Александру Дядюку его копию.
Кроме того, истец отметил, что указанный участок, согласно Генеральному плану Киева, относится по функциональному назначению к территории общественных зданий и сооружений и улиц и дорог, но разрешение выдано на строительство жилых домов. Дядюк подчеркнул, что ГАСИ теоретически могла выдать разрешение на строительство только т.д. н. многофункционального комплекса (БФК), в котором можно было бы предусмотреть определенное количество квартир, но их площадь не должна была бы превышать площадь помещений общественного назначения. Но в этом случае речь не идет даже о БФК.
Относительно землеотвода и МУО
Земельный участок площадью 10,7 га в пределах улиц Фрунзе, Нижнеюрковской и пер. Мыльная была передана в аренду ООО "Керамблоки-Инвест" в соответствии с решением Хозяйственного суда Киева от 19 октября 2006 года по делу №2/569. Этот судебный вердикт отсутствует в открытом доступе, поэтому трудно установить, на каких основаниях компания получила эту землю и почему была применена именно процедура ее отвода “через суд”, а не из-за решения Киевсовета. В то время это был один участок, который имел целевое назначение "для строительства жилого комплекса с объектами социального и общественного назначения и подземным паркингом". 27 декабря того же года между столичным горсоветом и ООО Керамблоки-Инвест был заключен договор этого участка на срок 5 лет.
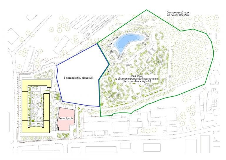
Участок на карте
В середине 2007 года компания обратилась в Киевсовет с ходатайством о возобновлении этого соглашения на срок 10 лет, но муниципалитет не принял ни одного решения по этому поводу – ни по согласованию, ни по отказу в такой пролонгации. Поэтому ООО “Керамблоки-Инвест” вновь обратилось в Хозяйственный суд Киева – на этот раз с иском относительно того, чтобы в договоре был установлен срок аренды 15 лет (“начальные” 5 лет плюс “дополнительные” 10 лет. – СМИ). И, наконец, 7 сентября 2007 года столичный хозсуд удовлетворил такие требования.
Фактически причиной стало то, что арендным соглашением от 27 декабря 2006 было предусмотрено, что арендатор не позднее чем за три месяца до конца срока аренды может обратиться к столичным властям по поводу возобновления договора при условии, если он полностью выполняет все его условия. По мнению суда, в данном случае условия были выполнены – в частности, арендатор платил арендную плату и начал проектные работы по дальнейшей застройке.
А уже в сентябре 2013 года ООО "Керамблоки-Инвест" направило в суд еще один иск - об исключении из арендного соглашения ряда пунктов. В частности, в компании не соглашались с пунктами о том, что одновременно со строительством жилищного комплекса она должна начать строительство на этой территории объектов социальной сферы (детские дошкольные учреждения, общеобразовательные школы, объекты здравоохранения и т.п.); что ООО "Керамблоки-Инвест" должно передать Главному управлению жилищного обеспечения КГГА 12% общей площади жилого комплекса и что к моменту сдачи домов в эксплуатацию компания должна уплатить в бюджет Киева 5% стоимости строительства.
Свое несогласие с этими пунктами в ООО пояснили тем, что, согласно требованиям Закона Украины «О регулировании градостроительной деятельности», в нашем государстве «был установлен запрет органам местного самоуправления требовать от заказчика строительства предоставления каких-либо услуг и передачи материальных или нематериальных активов». Таких аргументов компании хватило – 26 ноября 2013 года столичный хозсуд удовлетворил ее иск.
Получение строительных разрешений
4 июля 2014 года Департамент градостроительства и архитектуры КГГА издал ООО "Керамблоки-Инвест" вышеупомянутые МУО на проектирование строительства жилого комплекса с объектами социального и общественного назначения и подземным паркингом в пределах улиц Фрунзе, Нижнеюрковской и пер. Мыльного.
Как отмечалось выше, в этом документе, среди прочего, не была указана окончательная высота зданий, которые можно проектировать для строительства – лишь отмечалось, что она должна быть определена на основании выводов историко-градостроительного обоснования и что в случае превышения высоты 50 метров эти показатели следует согласовать с Министерством обороны Украины, ГП "Украеро". При этом, данным МУО было предусмотрено, что проектирование и строительство нужно проводить очередями – предварительно речь шла о 3 очередях строительства.
Также в "Гродностроях" указывалось, что участок проектирования находится в центральном историческом ареале, в пределах археологической охранной зоны, зоны охраняемого ландшафта (исторический ландшафт Киевских гор и долины р. Днепр) и в пределах охранной зоны памятника археологии национального значения Лысая гора (Юрковица). В этой связи, на ООО "Керамблоки-Инвест" было возложено обязательство согласовать проектную документацию с органами охраны культурного наследия.
Кроме того, "градостроями" было предусмотрено, что при дальнейшей застройке должны быть соблюдены требования противооползневого режима (в открытых источниках есть информация , что около половины участка попадает в оползневые территории. - СМИ) и что часть участка попадает на территорию зеленых насаждений общего пользования, а потому может быть использована только под благоустройство территории без права.
В 2020 году ООО Керамблоки-Инвест начало процесс сбора разрешений на проведение строительных работ – застройщик решил возводить свои жилищные высотки в несколько очередей. При этом процесс получения согласований для компании, судя по всему, был сложным. Например, разрешение на I очередь строительства было получено только в августе 2021 года – именно его оспаривает Александр Дядюк.
Вместе с тем, выдаче разрешения предшествовали два отказа, которые были обоснованы тем, что в пакетах документов, которые "Керамблоки-Инвест" подавало в ГАСИ, отсутствовал вывод по оценке влияния на окружающую среду, что в проекте застройки не были соблюдены санитарно-защитные зоны, расстояние 20 м от площадок для хозяйственного назначения до площадок для отдыха взрослого населения и т.п.).
Рендер ЖК "Рихерт & Парк"
Крайние два разрешения были выданы уже Государственной инспекцией архитектуры и градостроительства (ДИАМ, пришла на смену ликвидированной ГАСИ) – они датированы августом 2024 года и касаются III и IV очередей строительства. Всего, по информации профильных интернет-порталов о недвижимости, в рамках ЖК "Рихерт & Парк" планируется строительство 11 домов высотой 7-12 этажей, а генеральным подрядчиком строительства было указано ООО "Таврос Констракшн".
О скандалах
В последние годы столичная общественность не раз выступала против застройки этой территории. Например, в ноябре 2021 года общественная организация (ГО) "Космос Лагерь" обратилась в КГГА с просьбой не продлевать с ООО "Керамблоки-Инвест" договор аренды указанного участка, а также - наложить на эту компанию штрафные санкции за многочисленные нарушения условий соглашения и содействие в разрушении памятника и архитектуры. Также активисты попросили столичную мэрию изменить целевое назначение указанной земли из под застройку на зеленую зону и рекреационную территорию и создать на ней парк Юрковица.
Отметим, что упомянутые активисты пивзавод Рихерта находится на соседнем участке. Он был построен в 70-х годах XIX века и включает в себя ряд зданий и сооружений, которые, по свидетельству многочисленных источников , находятся в состоянии разрушения.
Впрочем, фактически ходатайство общественных активистов городские власти проигнорировали, ведь 2 ноября 2023 Киевсовет решением №7190/7231 согласовал возобновление договора аренды участка под будущим ЖК "Рихерт & Парк" еще на ’15 лет. При этом, в соответствующем проекте решения , утвержденном депутатским корпусом, не было никакого упоминания о каких-либо ограничениях относительно будущей застройки ввиду того, что участок находится в пределах “Исторического ландшафта Киевских гор и долины р. Днепра” – в документе только отмечалось, что на этой территории устраивается строительная площадка и выполняются подготовительные работы для строительства (планировочные работы, демонтаж зданий).
При этом незадолго до указанной пролонгации запланированным строительством на указанной территории заинтересовались правоохранительные органы. Так, 18 марта 2021 года Подольское управление Нацполиции Киева открыло уголовное производство по фактам возможных нарушений при выдаче документов, согласующих эти работы. Предварительно действия возможных фигурантов данного дела были квалифицированы по ст. 356 (самоуправство) и ч. 1 ст. 367 (служебная халатность) Уголовного кодекса (УК) Украины.
В ходе этого следствия правоохранители установили, что у вышеупомянутых МУО были превышены показатели высотности будущих домов на упомянутом участке. Что интересно, данные показатели следователи сравнивают с теми, которые указаны в документах, утвержденных столичной позже выдачи этих "градостроев". К слову именно эти документы, возможно, будет оспаривать Александр Дядюк.
В частности, речь идет о приказе Департамента охраны культурного наследия КГГА №86 от 18 декабря 2019 г., которым в зоне охраны памятника ландшафта и истории местного значения "Исторический ландшафт Киевских гор и долины р. Днепр” была установлена максимальная высота зданий на уровне 15 и 27 м. При этом правоохранителям стало известно, что 24 мая 2022 года тот же департамент своим приказом №83 сначала упразднил вышеупомянутый приказ, а далее, приказом №84, установил на территории указанного памятника новые режимы с тремя зонами регулирования застройки и разрешенной высотой для них 24, 36 и 36.
Также в рамках этого расследования следователи обратили внимание на то, что после вышеупомянутого возобновления договора аренды с участка с кадастровым номером 8000000000:85:311:0033 начался выдел двух участков – с кадастровыми номерами 8000000000:800 000:85:311:0032 (площадь 5,9 га). Кто именно и на каких основаниях это сделал, в судебных определениях по этому делу не уточняется, но важен тот факт, что пока отсутствуют точные данные относительно того, было ли завершено это разделение. При этом правоохранители отметили, что в данном случае, возможно, речь идет о попытках "выведения земли из-под статуса "достопримечательности ландшафта".
18 ноября 2024 года Подольский районный суд Киева по ходатайству правоохранителей наложил арест на упомянутые два участка. Это было сделано, в частности, для выяснения причин разделения этой земли и предотвращения продолжения строительства.
При этом именно в 2024 году столичная общественность вышла на пик своей активности в вопросе попыток недопущения застройки указанной территории. Так, жители Киева подали как минимум две петиции в Киевсовет, в которых активисты просили признать недействительным договор аренды указанной земли и создать на ней рекреационный парк "Юрковица". Более того – киевляне даже направили петицию к президенту Владимиру Зеленскому, попросив его посодействовать созданию национального парка "Киевские холмы", в который должна быть включена гора Юрковица с пивзаводом Рихтера. Во всех случаях аргументы активистов походили: мол, застройщики могут уничтожить старинные здания, местные жители хотят видеть на этой территории зеленую зону и т.д.
Все эти петиции в результате набрали необходимое для их рассмотрения количество голосов. И, похоже, в той или иной степени был результат. Дело в том, что 18 сентября 2024 года между ООО Керамблоки-Инвест и представителями общественности был заключен меморандум, согласно которому землепользователь пообещал местным жителям осуществить благоустройство парка на этой территории.
В открытом доступе этот документ отсутствует, но в открытых источниках есть информация, что эту зеленую зону застройщик пообещал обустроить на части арендованной земли площадью 5,85 га (т.е. фактически подтверждается раздел земли, на котором отмечали правоохранители. – СМИ). Также в ООО "Керамблоки-Инвест" согласились профинансировать обустройство "общедоступного вертикального парка в ареале склонов горы Юрковица площадью в 6,5 га (это соседний участок, который не находится в пользовании застройщика. - СМИ), который будет включать прогулочные зоны и смотровые террасы и будет передан" Киев.
Условный план использования этой территории от застройщиков
Среди прочего, застройщик пообещал соблюдать "предельные ограничения высотности проекта, согласованные с местными жителями во время общественных слушаний по реализации этого проекта" (точные данные по высотности в открытых источниках отсутствуют, но говорилось о высоте менее 40 метров. - СМИ) и внести инвестиции в размере 40 метров. Впрочем, будут ли выполнены эти и другие обещания ООО "Керамблоки-Инвест", пока остается вопросом, ведь такие формы декларирования обязательств, как меморандум, в Украине никаких гарантий не дают: то есть, фактически это всего лишь "бумажка" с "намерениями о намерениях", не имеющая никакой юридической силы.
Один из видов на участок по состоянию на август 2023-го (фото – "ЛУН")
В дальнейшем, 19 сентября 2024 года, Киевсовет решением №127/9935 согласовал передачу ООО Керамблоки-Инвест участка на ул. Кирилловской, 41-45 площадью 0,32 га в аренду на 10 лет для эксплуатации и обслуживания зданий и сооружений (кадастровый номер – 8000000000:85:311:0069). Эта земля расположена рядом с вышеупомянутыми 10 га и в свое время находилась в пользовании пивзавода. На этом участке расположена группа зданий, принадлежащих ООО Керамблоки-Инвест, общей площадью 804,4 кв.м. При этом решением было предусмотрено, что в случае невыполнения компанией условий вышеупомянутого меморандума, право аренды на этот участок должно быть прекращено.
Кто собирается строить
По данным аналитической системы Youcontrol, столичное ООО "Керамблоки-Инвест" было зарегистрировано в апреле 2004 года. Его руководителем указан Олег Семеняк, конечным бенефициаром - киевлянина Ивана Белоусова, учредителями - ООО "Ликерия" (взнос в статуальный капитал - 37%), АО "ЗНИКИФ "Ларам Систем", ООО "Раф Пипл" (по 24%) и по 24 % .
Система Youcontrol относит "Керамблоки-Инвест" и одну из его компаний-основателей - "Смарт Девелопмент +" - т.н. "группы семьи Баляш" . Она объединяет около трех десятков хозяйствующих субъектов, занятых в сферах сельского хозяйства, строительства, торговли и т.д. Среди активов группы - "Окси Банк" и сети магазинов электроники и бытовой техники "Шок" и "Крез". Ключевым лицом указанной группы является Олег Баляш - известный бизнесмен и дважды депутат Львовского облсовета (в 2006-2009 и 2011-2015 годах избирался от "ВО "Батькивщина" и "Партии регионов").
Также еще несколько лет назад Баляш был главой Львовской городской и Волынской областной организаций партии "Наш край" (ныне эти посты де-юре занимают другие лица. - СМИ), которая была основана экс-"регионалами" и деятельность которой была запрещена в июне 2024 года из-за сотрудничества отдельных членов этого политического движения со страной-агрессором.
В свою очередь, ООО "Раф Пипл" имеет отношение к группе "UFuture" , объединяющей более двухсот компаний. Эта группа имеет диверсифицированный портфель активов в разных отраслях – от недвижимости, инфраструктуры и промышленности до инновационных парков, возобновляемой энергетики и фармацевтики. Среди активов UFuture система Youcintrol выделяет международный аэропорт «Киев» им. И. Сикорскую и девелоперскую компанию "UDP" (возводила ТЦ "Городок", ТРЦ "Ocean Plaza" и т.п.).
Ключевым лицом группы UFuture является Василий Хмельницкий, который, в частности, известен как народный депутат пяти созывов (от III до VII включительно, в двух последних избирался от Партии регионов). К слову, в конце 2021 года СМИ писали, что Хмельницкий продал свою судьбу в UDP своему бизнес-партнеру Андрею Иванову.
Что касается АО УНИКОВ “Ларам Систем”, то оно входит в группу “A Development” , под “флагами” которой должно возводиться ЖК “Рихерт & Парк”. Компании этой группы, которых насчитывается более двух десятков, занимаются именно строительством жилой и коммерческой недвижимости. Ключевым лицом данной группы является бизнесмен Алексей Баранов (на коллаже слева).
При этом, “A Development” также не чужд Василию Хмельницкому. Например, по словам все того же Алексея Баранова, он "вырос из помощника Хмельницкого у его бизнес-партнера". Так, Баранов является выходцем из Киевской инвестиционной группы, которую Василий Хмельницкий вместе с Андреем Ивановым основали в конце 90-х, еще до UDP. В настоящее время Баранов называет UDP "комфортным стратегическим инвестиционным партнером, в котором он заработал начальные деньги для развития своего бизнеса". Также Алексей Баранов в 2018-2022 годах был основателем ООО Таврос Констракшн – генподрядчика строительства ЖК Рихерт и Парк.
К слову, эта компания также указана генподрядчиком строительства многофункционального комплекса на ул. Ивана Мазепы, 1, заказчиком которого является ООО "Войткон" - компания, учредителями которой в равных долях являются субъекты хозяйствования с орбиты "Фоззи Груп" (торгово-промышленная группа, которой владеет бизнесмен Владимир Костельман и управляет сетями супермаркетов "Сильпо" и "Фора") и ООО "КУА еДи".
Компании по орбите Василия Хмельницкого неоднократно фигурировали в громких "земельных скандалах".
Так, в сентябре 2023 года Кассационный хозяйственный суд вернул столичной общине два земельных участка площадью 375,18 га на Троещине, на которые в 2020 году зарегистрировало право постоянного пользования СООО «Новая Украина», бывшие и нынешние владельцы и руководители которого явно связаны с отеческими окрестностями. При этом, напомним, соответствующая регистрация была осуществлена без решения Киевсовета – благодаря частному нотариусу, который внес соответствующие сведения в Госреестр прав на недвижимое имущество. Также незадолго до такой регистрации Киевсовет включил часть этой земли в состав вновь заказника "Троещинские луга".
Пост директора Департамента градостроительства и архитектуры КГГА с 1 ноября 2016 года занимает Александр Свистунов . Департамент земельных ресурсов КГГА с 29 июня 2021 года возглавляет Валентина Пелих (выполняла обязанности руководителя этой структуры со 2 апреля 2021 года). С 27 июля 2018 года по 1 апреля 2021 года этим департаментом руководил Петр Оленич , который со 2 апреля 2021 года занимает должность заместителя председателя КГГА и курирует в Киеве земельные и градостроительные вопросы.
Автор: Иван Кулик
Теги: Смарт ДевелопментA DevelopmentТОВ КУА ЮДП Ессет МенеджментСТОВ Нова УкраїнаООО ВойтконТОВ ВойтконСвистунов АлександрОленич ПетрПелих ВалентинаТОВ Керамблоки-ІнвестКМДАКГГАДІАМГАСИДАБІВасилий ХмельницкийХмельницкий ВасилийБаляш ОлегДядюк АлександрЗастройщикЗабудовниксудебные искиуголовное производствоКиївКиев
Комментарии:
comments powered by DisqusЗагрузка...
Наши опросы
Показать результаты опроса
Показать все опросы на сайте
