Коммунистка Калетник строит резиденцию на берегу Днепра (ФОТО)

Коммунистка Калетник строит резиденцию на берегу Днепра (ФОТО)
Бывшую коммунистку Оксану Калетник не найти в последнее время в Украине, так как она путишествует по странам востока, чем подтверждает свое пребывание фотографиями в социальной сети Facebook.

Фото со страницы Калетник - https://www.facebook.com/oksana.kaletnyk
Но видимо отсутствие экс-депутатши в Украины не препятствует строительствушикарнейшего имения на берегу Днепра в Конча-Заспе.
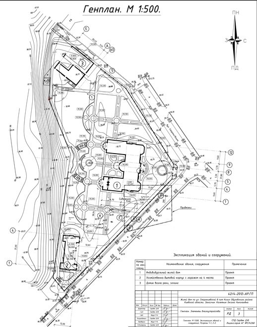
Документы, которые попали в распоряжения редакции ReviewNews лишь подтвердилипричастность Калетник к 1 гектару земли, на котором она строит дом общей площадью - 1860 квадратных метров, хозяйственый дом - 260 кв.м. и Еллинг на два катера - 439 кв.м.
В документах проектной документации заказчиком у компании СПД "Сердюк Д.Ю." является Калетник Оксана Николаевна.
для увеличения нажмите на картинку
Согласно генерального плана заезд для катеров будет обеспечиватся непосредственно с берега Днепра
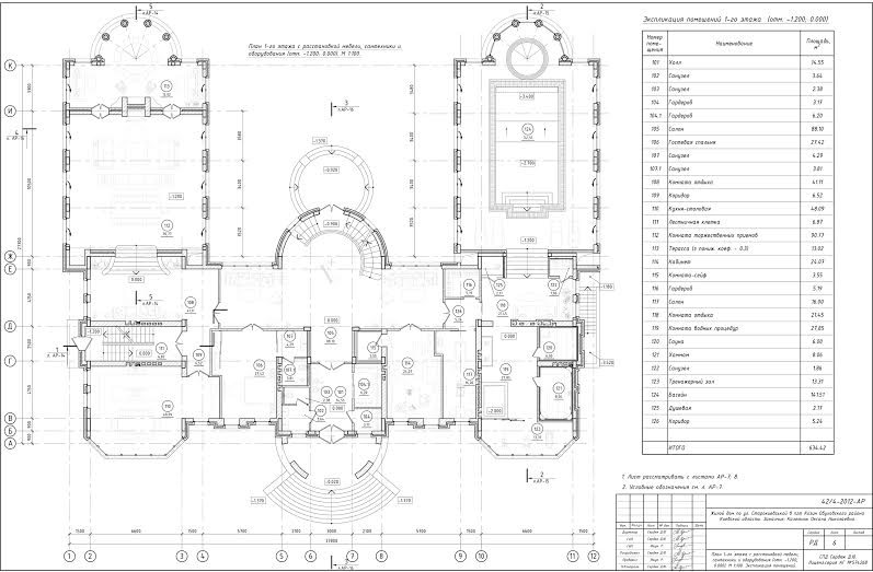
Сам же проект дома предусматривает три этажа площадью каждого по 450 кв.м. на которых разместились зал торжественных приемов на 90,77 кв.м. и бассейн 141 кв.м.
Что еще находится на планах вы можете самостоятельно убедится.
для увеличения нажмите на картинку
для увеличения нажмите на картинку
А вот такой образ будет иметь резиденцию уже через пару месяцев

вид со стороны Днепра

Главный фасад со стороны ул. Старокиевская

А вот такую строительную готовность "гнездо" Калетник зафиксировали камеры Google летом 2015 года, вся территория обнесена забором из профнастила, и как видим работы по возведению конструктивной части уже завершена, остается лишь отлелка внутри, фасад, и благоустройство.
фото дома Калетник - Google Maps
фото дома Калетник Google Maps


Видимо, по возвращению в Украину Калетник будет ждать уже роскошный дом с собственной прогулочной территорией. Главное чтобы экс-депутатша не забыла задекларировать это имущество, а также указать за какие средства построен этот дворец.
http://reviewnews.net/
Теги: Калетник Оксана
Комментарии:
comments powered by DisqusЗагрузка...
Наши опросы
Показать результаты опроса
Показать все опросы на сайте





